Vous souhaitez faire réaliser un plan ou un visuel 3D de vos projets ?
Nos experts interviennent rapidement et au meilleur prix.
Un expert au service de vos plans et visuels 3D
Issu d’un parcours technique solide dans le domaine du bâtiment et de la conception, Sullyvan Leroy met aujourd’hui son expertise au service de RITMODiag avec exigence et précision.
Pendant plus de 15 ans, il a exercé comme concepteur CAO, développant une parfaite maîtrise de la modélisation, de la lecture de plans et de l’analyse technique des structures.
Depuis plusieurs mois, il s’est spécialisé dans le diagnostic immobilier, domaine dans lequel il a obtenu ses certifications avec succès. Cette reconversion s’inscrit naturellement dans la continuité de son parcours, fondé sur l’analyse technique, la précision et la compréhension approfondie du bâti.
Aujourd’hui, il veille à fournir des diagnostics et plans et visuels 3D fiables, précis et conformes aux exigences réglementaires, tout en garantissant un accompagnement clair et professionnel à chacun de ses clients.
Sullyvan LEROY
Gérant de l’agence RITMODiag Vire
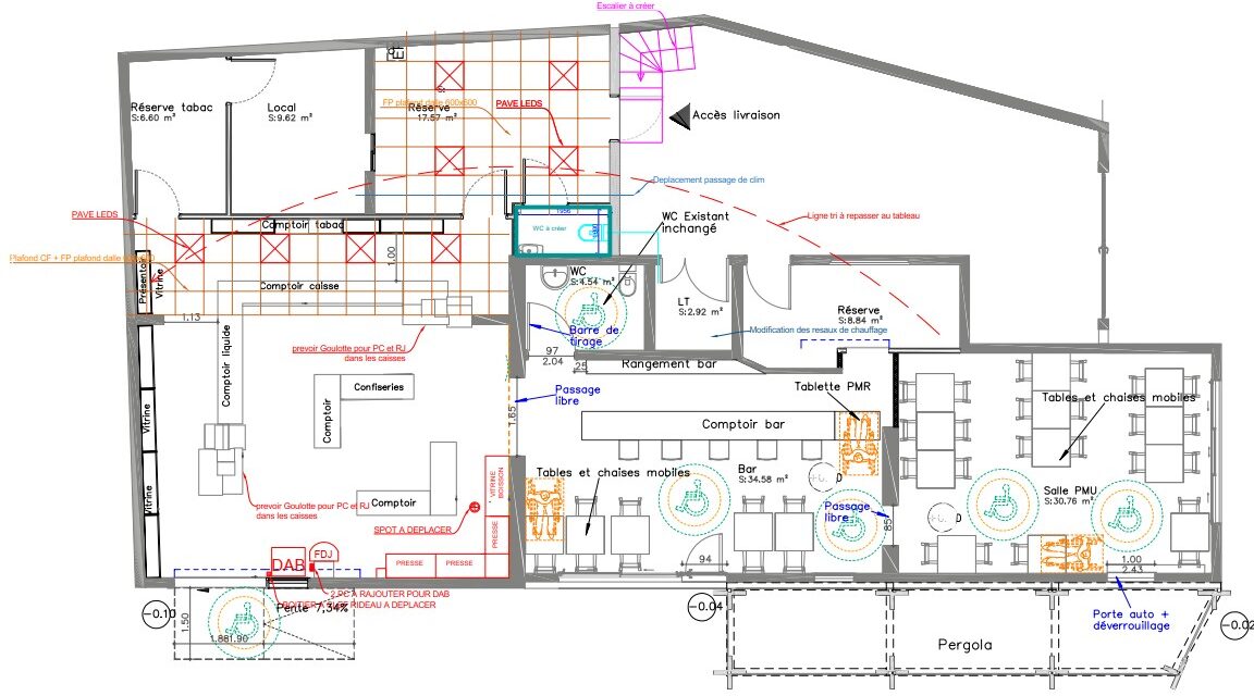
Conception de Plan & Permis de construire
Nous vous accompagnons dans la réalisation complète de vos plans architecturaux ainsi que de vos dossiers de permis de construire et déclarations préalables de travaux.
Vous avez besoin d’un plan d’implantation, d’un plan de réseaux, ou d’un relevé sur site ? Nous intervenons dès les premières étapes de votre projet afin de vous fournir une base fiable et précise.
De l’étude de faisabilité à la constitution du dossier administratif, nous réalisons l’ensemble des documents nécessaires : plans, coupes, façades et insertion paysagère, dans le respect des règles d’urbanisme en vigueur.
Un service clé en main pour simplifier vos démarches et optimiser vos chances d’acceptation.
La projection de votre projet avec les visuels 3D
Grâce à la modélisation 3D, nous vous permettons de visualiser votre futur intérieur avant même le début des travaux.
Nos rendus 3D réalistes vous aident à :
- vous projeter dans vos espaces
- valider les volumes et aménagements
- choisir matériaux et ambiances
Un outil essentiel pour prendre les bonnes décisions en toute confiance.
Agencement intérieur sur mesure
Nous concevons des solutions d’aménagement sur mesure adaptées à votre espace et à vos besoins. Nous réalisons des plans techniques détaillés pour la fabrication de :
- cuisines
- dressings
- meubles et rangements personnalisés
Optimisez chaque mètre carré avec des solutions fonctionnelles et esthétiques.
Pourquoi choisir RITMODiag pour vos plans et visuels 3D
Nous vous proposons un accompagnement personnalisé tout au long de votre projet, de la conception jusqu’à la réalisation. Nous vous aidons également dans la recherche d’artisans et la réalisation de devis, grâce à notre réseau de partenaires de confiance.
Un interlocuteur unique pour un projet maîtrisé de A à Z.


